GrowthPoint – Chaffey College Chino
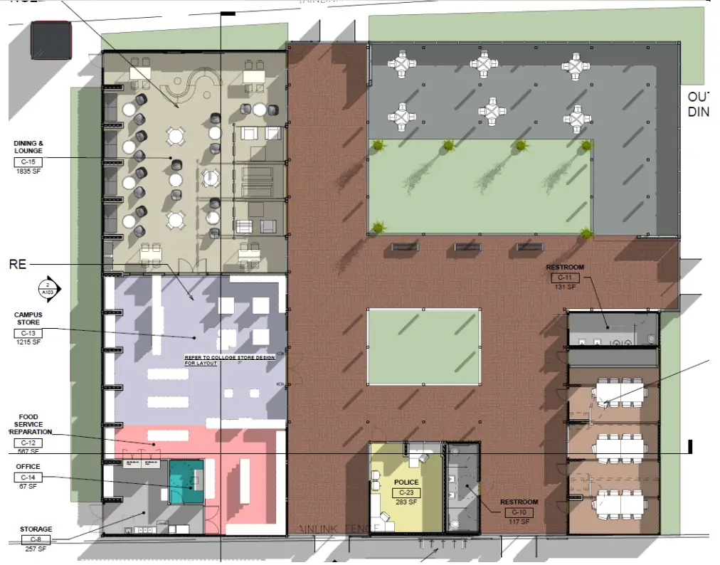
Budlong provided mechanical, electrical, and plumbing engineering services for Chaffey College Chino. Fire alarm fees and electrical system upgrades were included under the scope of design. The school is known for its programs specializing in nursing, fashion and interior design, culinary arts, hospitality management, industrial technology and much more. Chaffey College serves a predominantly latino/a community in addition to providing flexible schedules for part-time students who may have to work.
Project Type: Education
Location: Chino, CA
Year:2020
Client: AMS
Let’s Work Together and
Bring Your Vision To Life.

